Let op! Deze woning wordt aangeboden met een bieden vanaf prijs.
Graag laten wij je deze ruime eindwoning op een perfecte locatie zien. Alle ruimtes in dit huis zijn RUIM. Echt een woning voor starters of doorstromers. In de keuken kun je zelfs een grote eettafel kwijt. Op de eerste verdieping zijn 3 slaapkamers en op zolder een enorme kamer met een dakkapel.
De woning biedt veel mogelijkheden.
De woning ligt op korte afstand van het centrum van Almere Buiten, maar toch in een rustige, groene buurt, dit is toch de ideale combinatie!
Bel ons snel voor het maken van een afspraak voor een bezichtiging.
LOCATIE:
Deze ruime eindwoning ligt in de populaire groene- en kindvriendelijke Seizoenenbuurt in Almere Buiten. De wijk is ruim opgezet met vele voorzieningen op loopafstand, supermarkt, diverse (basis) scholen, peuterspeelzaal, gezondheidscentra en sportschool. Ook ligt de woning vlakbij het centrum van Almere-Buiten, met bus-en NS treinstation, de Oostvaardersplassen en vlakbij de uitvalswegen richting A6/A27.
Door de opbouw van de wijk, met veel groen tussen de woningen heeft de buurt een gezellige sfeer.
Kortom, een ideale locatie voor wie centraal wil wonen met alle voorzieningen binnen handbereik.
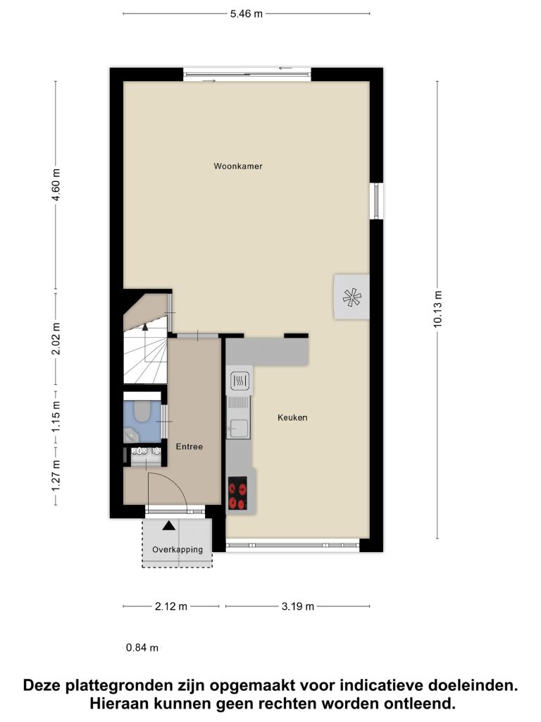
INDELING:
Begane grond:
Entree, hal met meterkast, toiletruimte en de trapopgang naar de eerste verdieping en toegang tot de tuingerichte woonkamer en open keuken. De ruime en lichte woonkamer heeft een schuifpui, convector- en vloerverwarming. Middels de schuifpui heb je toegang tot de achtertuin.
Aan de voorzijde van de woning bevindt zich de zeer ruime keuken met grote raampartij, de opstelling is in een ruime hoek geplaatst. Je kunt er zelfs een enorme eettafel plaatsen. De keuken is voorzien van een inductiekookplaat, koelkast, combimagnetron, vaatwasmachine (1 jaar oud).
De gehele verdieping is voorzien van marmoleum met vloerverwarming in de woonkamer en de keuken.
Verdieping:
Via de trap komen we op de ruime overloop met toegang tot 3 ruime slaapkamers, (9,12,14m²), bergruimte en de badkamer.
De badkamer heeft een douchecabine, toilet, ligbad, wastafelmeubel en vloerverwarming.
De gehele verdieping is voorzien van marmoleum.
Zolder:
Via de open trap kom je op de overloop met was- en drogeraansluiting, cv- en mechanische installatie, bergruimte en toegang naar de zeer ruime slaapkamer (29 m²) met dakkapel en veel bergruimte.
Deze verdieping is voorzien van laminaat
Tuin:
De achtertuin heeft een stenen berging met achterom, water- en elektrapunt.
BIJZONDERHEDEN:
-Perfecte ligging!
-Korte afstand van het centrum van Almere Buiten
-Woonoppervlak 133m²
-Ruime woning op ruime hoek.
-Grote keuken
-Vloerverwarming begane grond
-4 slaapkamers
-Zolder met dakkapel
-Bergruimte op de 1e verdieping kun je verbouwen tot apart toilet
-Alarminstallatie en camera’s
-Energielabel A
Met de nodige liefde en aandacht kun je van deze woning een waarlijk paradijsje maken. Wil je dat zelf komen bekijken, maak dan een afspraak met ons en wij begroeten je graag in de woning!
Bieden vanaf € 425.000,-
Aanvaarding in overleg/kan snel.
Voor meer informatie kijk op de site van de woning: http://novemberstraat18.nl
Disclaimer:
Alhoewel deze tekst zorgvuldig is samengesteld, kunnen er aan deze tekst geen rechten worden ontleend. Wij staan niet in voor de juistheid van de getoonde gegevens. Opgegeven maten dienen slecht als indicatie te worden gezien. Van toepassing zijn de VastgoedPRO-voorwaarden.