Let op deze vraagprijs is een bieden vanaf prijs!
Deze leuke goed onderhouden en fraaie eengezinswoning is beschikbaar voor jou!
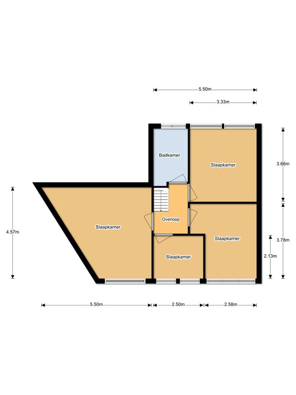
De bewoners houden niet van half werk en dat zie je overal in de woning terug. De woning is daarom ook zonder te klussen zo te betrekken. Door de ligging van de woning in het blok heeft deze een extra ruime verrassende kamer, zie hiervoor de plattegronden. De woning ligt in een rustige en kindvriendelijke straat en op loopafstand van scholen, medische voorzieningen en het winkelcentrum Dronten Zuid.
De indeling is als volgt:
Begane grond:
Via de lichte hal heb je toegang tot het toilet, de meterkast en de kast met wasmachine en droger aansluiting. In de hal is een nis gebouwd waarin de kapstok mooi is verwerkt hierdoor krijgt de hal een rustige en strakke uitstraling. Vanuit de hal heb je toegang tot de tuingerichte woonkamer. De woonkamer is voorzien van een mooie houten vloer die doorloopt tot in de straatgerichte keuken. De keuken is voorzien van een 5 pits gaskooktoestel, een afzuigkap, een nieuwe vaatwasser, een koelkast plus vriesvak, een combi magnetron en een boiler. De boiler zorgt voor een snelle toevoer van het warme water.
Via de woonkamer heb je tevens toegang tot de heerlijke zonnige tuin. Met het openslaan van de zonnewering (knik arm-systeem) heb je een heerlijke verlenging van je huis en breng je zo binnen naar buiten.
1e verdieping:
Op de eerste verdieping bevinden zich maar liefst 4 slaapkamers en een prachtige ingerichte badkamer voorzien van 2e toilet, design radiator, douchecabine met douche en wastafel in een badkamermeubel. Uiteraard op de badkamer na ligt op de gehele eerste verdieping een mooie, en overal doorlopend, laminaat vloer.
2e verdieping:
Via een vlizotrap vanuit een slaapkamer is een ruime opbergzolder bereikbaar met een raam wat de ruimte vult met daglicht.
De tuin:
De keurig onderhouden en gezellig aangelegde tuin met zonneterras ligt op het Zuidwesten. De tuin heeft een achterom naar een steeg. Op het perceel staat ook een stenen berging met een overkapping. Hierdoor is de gehele achterzijde van de tuin overdekt.
Nog even de kenmerken op een rij:
• Instapklare woning
• Nabij diverse voorzieningen, zoals scholen, gezondheidscentrum en winkelcentrum Dronten Zuid
• Ruime woonkamer
• 4 slaapkamers op de eerste verdieping
• Keurig onderhouden tuin op het Zuid-Westen
Ben jij nieuwsgierig geworden naar deze woning? Zeer begrijpelijk! Je bent van harte welkom om deze leuke woning te komen bezichtigen. Bel of mail ons voor het maken van een afspraak!