Beltweg 4, Kampen

€ 195.000,- k.k. Download brochure
Status
Verkocht
Vraagprijs
€ 195.000,- k.k.
Adres
Beltweg 4
Postcode
8262 BH
Plaats
Kampen
Woonoppervlakte
75 m2
Kamers
3
Slaapkamers
2
Bouwjaar
1962

Foto's van Beltweg 4, Kampen

Informatie

Dit fraaie appartement met briljant uitzicht is beschikbaar voor jou. Het appartement bevindt zich op de hoek van de Noordweg en de Beltweg. Gelegen op 5 minuten lopen van het stadscentrum van Kampen. Het winkelcentrum, voorzieningen en scholen bevinden zich op een steenworp afstand. Ook is de gemeente Kampen druk bezig met de ontwikkeling van de “Groene Long” van Brunnepe , welke achter het appartement ligt. Met de “Groene Long” wordt het gebied vanaf de Brunneper Bongerd tot aan jachthaven De Riette bedoelt. Men maakt de historische waterloop van ‘de Riette’ weer zichtbaar en beleefbaar.

Het betreft een galerij appartement dat aan het einde van de galerij gesitueerd is. Dit heeft als voordeel dat je voor je eigen appartement vanaf een bankje of lekkere stoel heerlijk van de zon kunt genieten.
Het appartement kenmerkt zich door de praktische indeling en haar grote raampartijen, die niet alleen voor veel daglicht zorgen maar ook voor mooie vergezichten. De woning is voorzien van airco en aan de achterzijde (zuid kant) voorzien van rolluiken, kunststof kozijnen en HR++ glas.

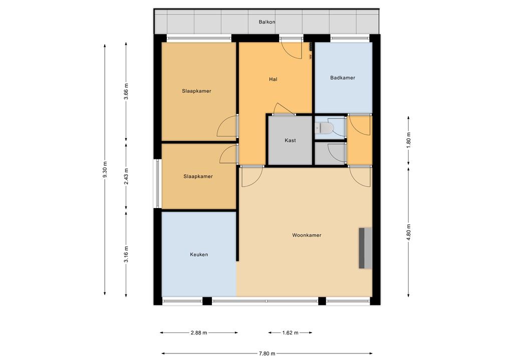
Indeling: via de hal heb je toegang tot de meterkast, een zeer ruime bergkast, een ruime ouder slaapkamer en een kleinere kinderkamer. Via de hal loop je door naar de woonkamer. De straat gerichte woonkamer loopt over in de half open keuken. De woonkamer is ruim en leent zich voor verschillende indelingen. De woonkamer is voorzien van gezellige open haard met schouw.
Dan heb je vanuit de woonkamer toegang tot een halletje. Vanuit daar bereik je het toilet, de wasruimte cq ketelhok en de ruime badkamer.

Berging: in de kelder bevindt zich nog een riante berging met daglicht toetreding. Ideaal om fietsen te plaatsen en /of als opslagruimte te gebruiken.

Zie jij je jezelf wonen in dit appartement? Je bent van harte welkom.

Plattegronden

Plattegrond van ,