Beyerinckstraat 75, Kampen

€ 239.500,- k.k. Download brochure
Status
Verkocht
Vraagprijs
€ 239.500,- k.k.
Adres
Beyerinckstraat 75
Postcode
8265 XB
Plaats
Kampen
Perceel
161 m2
Woonoppervlakte
109 m2
Kamers
4
Slaapkamers
3
Bouwjaar
1964

Foto's van Beyerinckstraat 75, Kampen

Informatie

Deze super hippe tussenwoning staat op het mooiste plekje in de Beyerinckstraat. De Beyerinckstraat is gelegen in de “Flevowijk”. De woning staat vlak bij het winkelcentrum, scholen, sportvelden en het ligt maar 5 minuten van het centrum van Kampen. De woning heeft het karakter van een jaren 60 huis maar is van binnen volledig gemoderniseerd. De liefde- en smaakvolle herindeling maakt deze woning dan ook tot een pareltje.

Begane grond:
Via de hal heb je toegang tot het toilet, de kelderkast, meterkast en de keuken. De half open keuken is modern en voorzien van inbouwapparatuur. Vanuit de keuken kom je in de doorzon woonkamer. De woonkamer is onderverdeeld in een zitgedeelte aan de voorzijde, waar je vrij de Cruquiusstraat in kijkt. De bewoners hebben in de uitbouw aan de achterzijde de eettafel staan. De uitbouw is voorzien van openslaande deuren. Hierdoor is een hele mooie verbinding gemaakt met de net aangelegde heerlijke zonnige tuin! Vanuit de woonkamer heb je ook nog toegang tot een ruime bijkeuken. Hier is ook de wasmachine en droger aansluiting.

1e Verdieping:
2 slaapkamers, Volledig gerenoveerd 2e toilet en een zeer ruime badkamer voorzien van bad, inloop douche en wastafel.

Zolder
Door de dakopbouw is hier nog een heerlijke ruime kamer ontstaan. Op de overloop bevinden zich de technische installaties, de nieuwe CV ketel en de mechanische ventilatie.

Tuin: De woning heeft een heerlijke zonnige tuin op het zuiden. De tuin is met zorg en smaak ingericht, met aandacht voor schaduw, groen en ook onderhoudsvriendelijk.
Recht achter op het perceel staat een ruime (10m2) vrijstaande stenen berging. De tuin is ook te bereiken via een achterom.

Ben jij nieuwsgierig geworden? Je bent van harte welkom om dit pareltje van een woning te bewonderen.

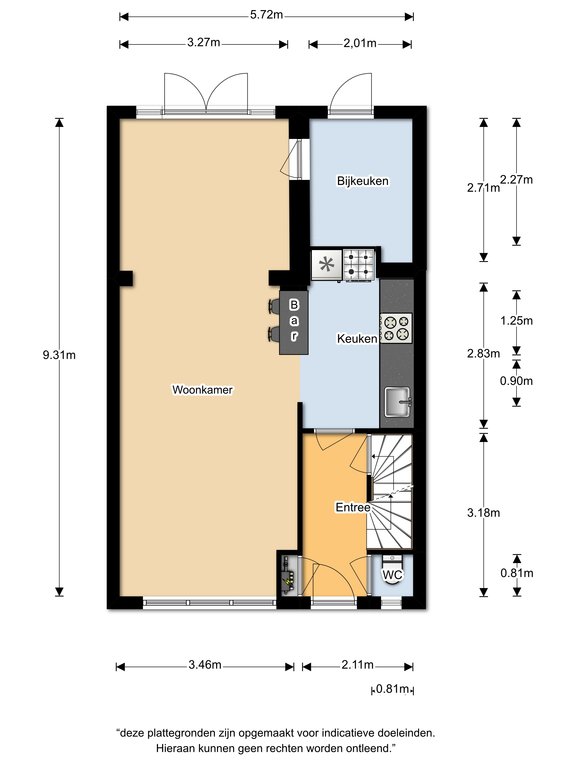
Plattegronden

Plattegrond van ,
Plattegrond van ,
Plattegrond van ,
Plattegrond van ,