Tijm 8, Kampen

€ 339.500,- k.k. Download brochure
Status
Verkocht
Vraagprijs
€ 339.500,- k.k.
Adres
Tijm 8
Postcode
8265 DT
Plaats
Kampen
Perceel
154 m2
Woonoppervlakte
132 m2
Kamers
6
Slaapkamers
5
Bouwjaar
1973

Foto's van Tijm 8, Kampen

Informatie

In de kindvriendelijke en gezellige woonwijk ‘Cellesbroek-Middenwetering’ vind je deze heerlijke, comfortabele en ruime hoekwoning. De woning is gunstig gelegen en op korte afstand van het winkelcentrum, diverse scholen en sportvelden.

De woning is voorzien van maar liefst 5 slaapkamers, is volledig geïsoleerd en beschikt over 8 zonnepanelen. Wat deze woning ook zeer comfortabel maakt is de heerlijke vloerverwarming op de begane grond, plus alle vertrekken zijn op warmte te bedienen via een app. Naast de onderhoudsvriendelijke kunststof kozijnen heeft de woning ook een zonnige en onderhoudsvriendelijke tuin. Je kunt zien dat deze woning met liefde en aandacht is onderhouden en hiervoor zijn alleen de beste materialen gebruikt. Denk hierbij aan Isolerende verf in de woonkamer, horren, rolluiken, raambekleding, schuttingen et cetera, allemaal netjes en van hoogwaardige kwaliteit.

Enkele mooie kenmerken op een rij:
• fijn gezinshuis/hoekwoning;
• met liefde en aandacht onderhouden;
• volledig geïsoleerd en gerenoveerde in 2013;
• centrale locatie;
• hierdoor alle voorzieningen nabij;
• vloerverwarming begane grond;
• maar liefst 5 slaapkamers;
• onderhoudsvriendelijke kunststof kozijnen;
• 8 zonnepanelen.

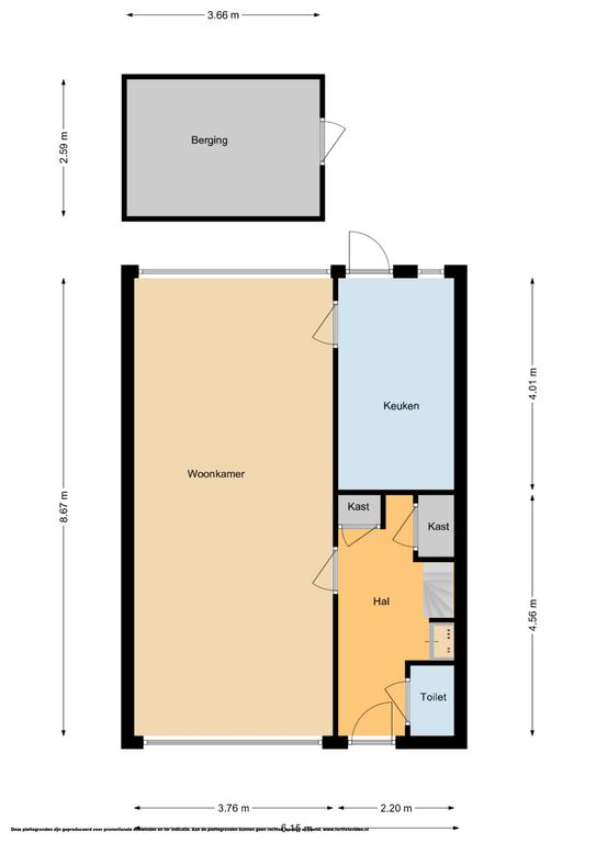
De indeling is als volgt:

Begane grond:
Via de voortuin bereik je de entree. Vanuit de hal heb je toegang tot de meterkast, het toilet, de trapkast, de trapopgang naar boven en de woonkamer. De doorzon-woonkamer heeft grote raampartijen waardoor het licht en ruim aanvoelt. Via de woonkamer heb je toegang tot de gezellige keuken. De keuken is voorzien van diverse inbouwapparatuur. Vanuit de keuken heb je toegang tot de onderhoudsvriendelijke tuin.

Eerste verdieping:
Op de eerste verdieping bevinden zich de badkamer en 3 slaapkamers. Waarvan de ouderkamer en de overloop voorzien zijn van een handige vaste kast. De lichte badkamer is compleet betegeld en voorzien van een wastafel met wastafelmeubel, een douchecabine en een tweede toilet.

Tweede verdieping:
Via een vaste trap bereik je de tweede verdieping. Door de grote dakkapel over bijna de gehele breedte aan de achterzijde van de woning vind je op deze verdieping ook nog eens 2 slaapkamers. De wasmachine en droger kunnen gesitueerd worden op de ruime overloop.

Tuin:
De zonnige tuin ligt op het westen en heeft een vrijstaande stenen berging.

Ben jij inmiddels enthousiast geworden na het zien van de foto’s? En zie je jezelf hier al helemaal wonen? Je bent van harte welkom! Bel of mail ons kantoor en we plannen graag een bezichtiging met je in!

Mevrouw Vastgoed Makelaardij
T: 038 – 230 2785

Plattegronden

Plattegrond van ,
Plattegrond van ,
Plattegrond van ,