Wilhelminalaan 100, Kampen

€ 295.000,- k.k.
Status
Verkocht onder voorbehoud
Vraagprijs
€ 295.000,- k.k.
Adres
Wilhelminalaan 100
Postcode
8262 DH
Plaats
Kampen
Perceel
93 m2
Woonoppervlakte
85 m2
Kamers
6
Slaapkamers
4
Bouwjaar
1940

Foto's van Wilhelminalaan 100, Kampen

Informatie

Op zoek naar een karakteristieke woning met eigen zij-entree om wonen en werken te combineren?
Dan is Wilhelminalaan 100 in Kampen absoluut het bezichtigen waard!

Deze woning ligt aan een rustige, groene laan in de Oranjewijk. Je woont hier centraal, met het stadspark, scholen, supermarkten, medische voorzieningen en het winkelcentrum Hanzewijk op korte afstand. Ook het station en de historische binnenstad van Kampen zijn eenvoudig bereikbaar per fiets of te voet.

De woning heeft een verrassende indeling en biedt veel gebruiksruimte. Dankzij de extra kamer op de begane grond, de bijkeuken met aparte zij-entree is deze woning bijzonder geschikt voor het combineren van wonen en werken aan huis, bijvoorbeeld voor een praktijk, atelier of kantoorruimte met eigen toegang.

Enkele unieke kenmerken:
* Centrale ligging nabij voorzieningen en de binnenstad;
* Karakteristieke woning;
* Veelzijdige indeling;
* Mogelijkheid tot werken aan huis door extra kamer met eigen zij-entree;
* Praktische bijkeuken;
* Volledig naar eigen inzicht en smaak in te richten.

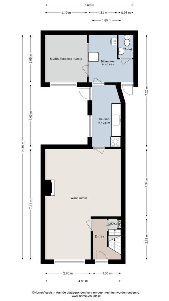
De indeling is als volgt

Begane grond
Via de entree kom je binnen in de hal, waar zich de trapopgang naar de eerste verdieping bevindt. In de hal is een praktische trapkast aanwezig, waarin de meterkast is gesitueerd. Vanuit de hal heb je toegang tot de woonkamer.

De woonkamer is prettig ingedeeld en biedt voldoende ruimte voor zowel een comfortabele zithoek als eethoek, waardoor je hier gemakkelijk een gezellige leefruimte kunt creëren.

Vanuit de woonkamer loop je door naar de keuken. De keuken biedt veel licht dankzij de aanwezige raampartijen, beschikt over voldoende opbergruimte en is een praktische ruimte die uitnodigt om helemaal naar eigen wens in te richten. Via de keuken is er toegang tot de beschutte binnenplaats.

Vanuit de keuken heb je ook toegang tot de bijkeuken voorzien van toilet. Aansluitend is er een extra kamer, die in het verleden in gebruik is geweest als kleermakerij. Deze ruimte is uitstekend geschikt als werk-, hobby- of praktijkruimte.
De bijkeuken beschikt over een eigen ingang aan de zijkant van de woning, waardoor deze ruimte volledig los van het woongedeelte te gebruiken is. Dit maakt de woning zeer geschikt voor wie wonen en werken wil combineren, met behoud van privacy.

Eerste verdieping
Op de eerste verdieping bevinden zich drie slaapkamers. De kamers zijn prettig van formaat en beschikken over meerdere inbouwkasten, wat zorgt voor praktische bergruimte. De derde kamer aan de achterzijde biedt toegang tot het dakterras, dat praktisch is voor bijvoorbeeld het drogen van de was.
De badkamer is voorzien van een wastafelmeubel, toilet en douchecabine. Ook is hier de aansluiting voor de wasmachine aanwezig.

Tweede verdieping
Via een vaste trap bereik je de tweede verdieping. De overloop biedt toegang tot een vierde slaapkamer. Door de schuine dakvlakken heeft deze kamer een karakteristieke indeling en vormt deze verdieping een volwaardige toevoeging aan de woning.

Buitenruimte
Vanuit de keuken heb je toegang tot een beschutte binnenplaats. Hier is ruimte om een leuk zitje te creëren, waar je heerlijk kunt genieten van een kop koffie of even buiten kunt ontspannen.

Ben je benieuwd naar deze woning en wil je zelf ervaren wat deze te bieden heeft?
Neem gerust contact met ons op voor meer informatie of het plannen van een bezichtiging.
Je bent van harte welkom!

Mevrouw Vastgoed Makelaardij
038-2302785

Let op: in de koopovereenkomst worden de ouderdomsclausule en de niet-zelfbewoningsclausule opgenomen.

Plattegronden

Plattegrond van ,
Plattegrond van ,
Plattegrond van ,
Plattegrond van ,
Plattegrond van ,
Plattegrond van ,

Meer informatie over deze woning of een bezichtiging plannen?